产品名称: KWNP系列变压器中性点间隙保护装置
产品质量:
详细介绍

一、概述

本产品广泛应用于电力、冶金、石化、矿山、建筑、环保等领域。用于供电系统中性点不接地110kV、220kV变压器中性点绝缘保护,由于雷击、单相接地短路故障等造成中性点过电压,对中性点的绝缘造成很大威胁,所以必须对其配备保护装置以防止事故发生。

二、技术性能及特点

1.本系列产品集隔离开关、氧化锌避雷器、放电间隙和电流互感器等电气设备为一体,具有功能全、可靠性高、便于安装调试等特点。

2.本系列产品的放电间隙有棒形和球形两种形式。

3.隔离开关的操作机构可按工程要求选用手动或电动机构。

4.间隙放电电压稳定,间隙距离易于调整。

5.间隙底座安装吊环,整件运输吊装,现场安装快捷方便。

三、型号说明


四、接线原理示意图

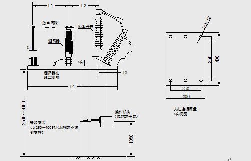
五、装置外形及安装示意图(单位:mm)

注意:此示意图仅作为KWNP系列变压器中性点间隙保护装置的安装参考,尺寸以实际产品尺寸为准。

六、注意事项

1.变压器中性点引线接入时按照安装示意图所示。

2.现场结构柱由用户准备(如用户需要本公司可提供),可采用水泥杆或金属钢管,离地1050mm处预留钢箍。现场结构柱的高度由工程自行确定,一般应在2500mm~4000mm之间。

3.设备安装时应可靠接地。

4.产品的外形及尺寸以实际供货为准。

七、订货须知

1.变压器的电压等级及绝缘水平。

2.间隙保护电流互感器的精度、变比和容量。

3.变压器中性点零序保护用电流互感器的精度、变比和容量(注:本互感器一般装设在变压器中性点的出线套管上,不包括在本装置内,如有需要请在订货时说明)。

1.隔离开关的额定电流及操动机构的操作方式。

2.氧化锌避雷器的额定电压及雷电残压。

3.产品的安装方式是用户预浇水泥杆支柱还是随产品配套供应地面以上的全套安装支架及附件。